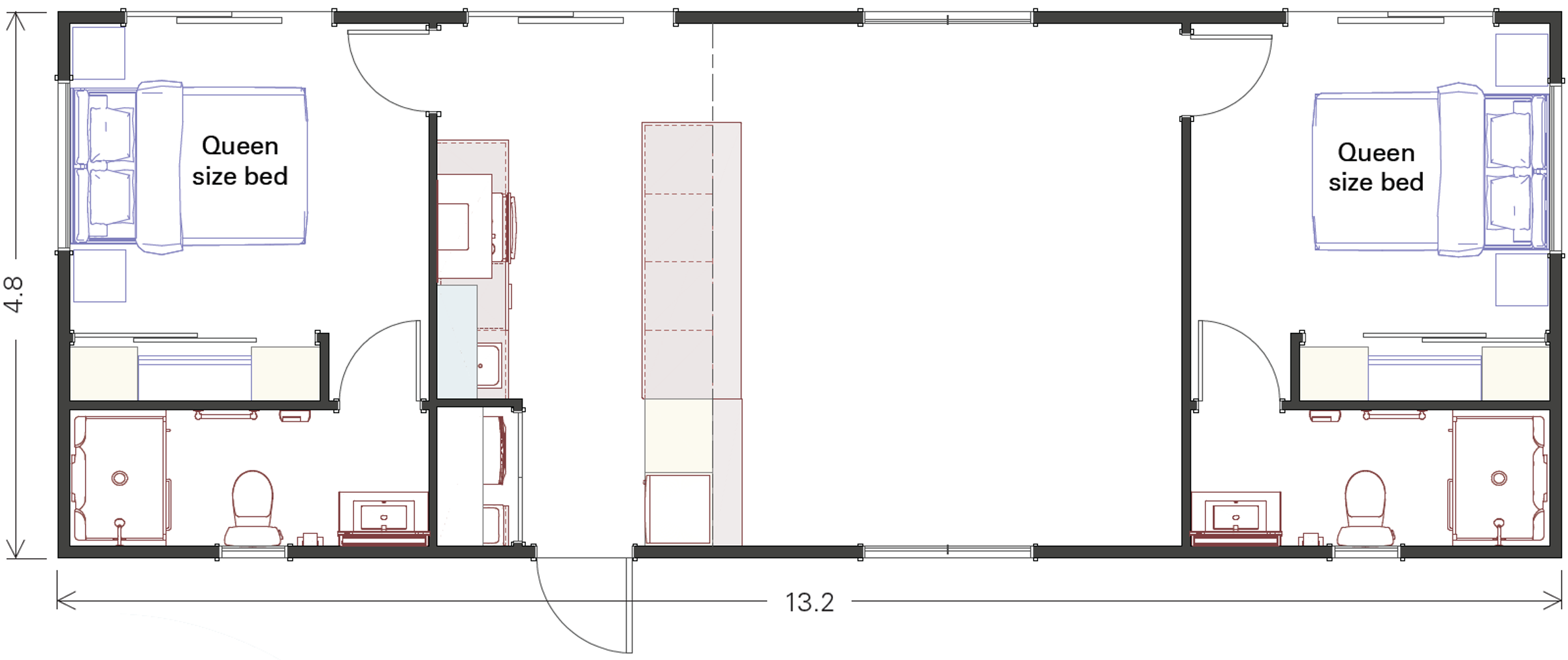
Twin Ensuite

Twin Ensuite

Specifications
Construction Details
- •Zinc coated, steel base
- •EPS panel walls & roof, internal and external
- •Coloursteel flashings
- •Structural plywood flooring
- •Double glazed aluminium windows and doors with argon gas filled glass
- •Fully insulated to exceed H1 requirements, built to Climate Zone 6
Kitchen
- •Quality custom made kitchen cabinetry with laminex benchtop in the colour of your choice
- •Kitchen sink and tapware
- •Twin pull out rubbish bins
- •Ceramic cooktop, electric oven and rangehood
- •Splashback behind cooktop & kitchen sink
Bathroom
- •Toilet suite & toilet roll holder
- •Vanity unit with tapware and mirror cabinet above
- •Acrylic shower with shower column and mixer
- •Heated towel rail, bathroom heater and extraction fan
Internal Fitout
- •Solution dyed nylon carpet with 11mm underlay
- •Euroflor V supreme vinyl in bathroom and kitchen areas
- •Internal hinged doors, painted
- •Interlinked smoke alarms, plus wall mounted controller
- •Cove profile to wall/ceiling junctions
- •Wardrobes to bedrooms where pictured
Electrical & Heating
- •Flush mounted LED ceiling lights
- •Internal power outlets
- •Exterior up/down lights to front wall
- •Barge lights over rear exterior doors
- •R32 heatpump (WIFI enabled)
- •Switch board with RCD circuit breakers
Optional Extras
- •Wardrobe upgrades - mirrored doors, wardrobe towers
- •Gas cooktop/oven
- •Tv mount/s
- •Blinds/curtains/curtain rails
- •Custom splashbacks
- •Additional power points
- •Air conditioning
Frequently Asked Questions
Common questions about the Twin Ensuite
The base price includes the complete portable building structure, basic interior finishes, electrical wiring, and plumbing rough-in. Additional costs may apply for site preparation, delivery, consents, and custom finishes.
Delivery typically takes 4-6 weeks from order confirmation, depending on your location and current production schedule. Installation usually takes 1-2 days once the building arrives on site.
Yes, we provide full consent management services. Our team will handle all necessary permits, building consents, and council requirements for your portable building project.
Absolutely! We offer extensive customization options including layout modifications, premium finishes, additional rooms, and specialized features to meet your specific requirements.
We provide a comprehensive 10-year structural warranty and 2-year warranty on all fixtures and fittings. Our buildings are built to New Zealand building standards for long-term durability.
Yes, we offer complete site preparation including foundation work, ground leveling, and utility connections. Our team can handle everything from initial site assessment to final installation.
Yes, our portable buildings are designed and built to meet residential building standards. They can be used as homes, granny flats, home offices, or any other residential purpose.
We offer flexible financing options including payment plans and can work with various lenders. Contact us to discuss the best financing solution for your project.
Still have questions? We're here to help!
Contact Our Team
